PRONAJATO - Reprezentativní prostor v historické budově z konce 19. století, 197 m² – ul. Jankovcova, Praha 7 – Holešovice
Nabízím vám k dlouhodobému pronájmu reprezentativní prostory v historické budově z konce 19. století na adrese Jankovcova, Holešovice , Praha 7. Nabízený prostor se nachází v 1. NP o celkové ploše cca 197 m². Ideální k poskytování primární ambulantní zdravotnické péče v oboru zubního lékařství, dentální hygieny či např. estetické medicíny, dermatologie a lékařské kosmetiky atd. V budově působí privátní dentisti (centrum estetické stomatologie a parodontologie; komplexní stomatologická péče pro dospělé i děti), dentální hygienistky (preventivní, léčebná a vzdělávací činnost) a zubní laboratoř.
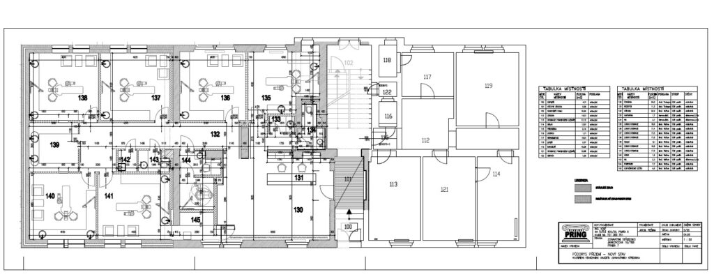
Samostatný celek oddělený vstupními dveřmi disponuje recepcí, čekárnou, šesti ordinacemi, denní místností s kuchyňkou, místností vhodnou pro umístění RTG přístroje, dvěma sociálními zařízeními, velkorysými skladovacími prostory. Ordinace splňují hygienické a technické standardy, jsou vybaveny moderními vestavěnými skříněmi, přípravou k instalaci zubních souprav, moderním osvětlením. Celková plocha ordinací je 106,2 m². Prostory, které byly zkolaudovány jako součást dostavby severního křídla v roce 2011, jsou kompletně klimatizovány. Budova je zabezpečena kamerovým systémem, vstup na čipy. Zkolaudováno jako zdravotnický prostor. Možnost parkování na ulici.
Nájem 95 000,- Kč/měsíc, včetně DPH (cena k jednání) + záloha na elektřinu (předpokládané náklady cca 10 000,- Kč/měsíc), plyn (předpokládané náklady cca 7 000,- Kč/měsíc) a vodu (předpokládané náklady cca 2 000,- Kč/měsíc). Vratná kauce ve výši 2 nájmů. Nabízíme dlouhodobý pronájem u solidního majitele celé nemovitosti. Volné ihned. V případě zájmu o prohlídku prostoru mě neváhejte kontaktovat.
3D půdorys




























